anvers-simons | BEL

Program

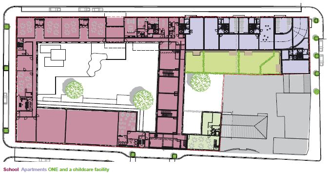
residential, nursery, primary school

Client

Régie Foncière de la Ville de Bruxelles

Collaboration

Stubeco, Crea-Tec, Democo

Surface

10 779 m² / 116 024 ft² + 13 369 m² / 143 902 ft²

Performance

Passive House, Exemplary Building award 2012, EU Passreg

Location

Brussels (BEL)

Status

completed

share on