zerobox | WORLD

What if buildings could simply appear where you needed them?
What if a building could solve a housing crisis in less than a month?
What if you could suddenly have a home where no one else has ever lived before?
Is it possible to have zero impact on the environment?

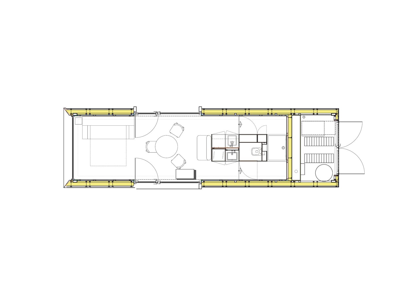
The zerobox gives an answer to these and more pressing questions. It is a new modular building system that brings great ideas into life in the span of only a few months. This translates into houses, hotels, businesses or bars that can literally appear without delay, anywhere in the world.

In terms of energy and water consumption, the zerobox is a responsible and totally self-sufficient micro unit. The prototype was conceived in the framework of our think tank, FAAST. The company BWATT was recently created to continue the development and marketing of these modular units.

Program

residential, research

Client

Innoviris, FAAST

Collaboration

Thingsplay

Surface

43 m² / 462 ft²

Performance

Passive House, zero energy, self-sufficient, CO2 neutral, circular

Location

Brussels (BEL)

Status

completed

share on